The Arizona Commerce Authority has awarded Northland Pioneer College (NPC) a 2024 Economic Resources Transition Grant to relocate and build a new center in Kayenta, AZ. The $8,895,684 grant will facilitate the economic revitalization of the Kayenta area by expanding NPC’s program offerings, educational services, and economic development resources within the region.
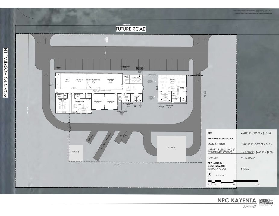
With the assistance of the new grant, NPC will replace the college’s existing location, along with the Kayenta Library, in a move to a new industrial park located at the heart of the Navajo Nation in the town of Kayenta. The new center will be constructed near the Kayenta Indian Health Service facility and other local businesses. The project includes a two-building complex to house new education facilities and in-person and connected classrooms to increase college-level course offerings in career and technical education, the arts and sciences, and facilitate a new CDL program.
Colorful sprawling vistas, lush farmland, and magnificent landscapes surround Kayenta. Unfortunately, the remote area lands on the wrong side of the digital divide regarding access to high-speed internet. While NPC’s current location in Kayenta provides reliable access to these services, the existing leased modular building cannot be expanded to accommodate additional community and educational services. The nearest NPC campuses are in Holbrook and Winslow, roughly 3 hours to the south. Diné College lies 2.5 hours to the east and Northern Arizona University is 3.5 hours to the west. With the new facility, NPC hopes to reduce the need for student travel time for required coursework. Additionally, by expanding the Kayenta Center’s community-centered services, NPC will continue to support the Kayenta community as a hub for those who need free and reliable access to computers and high-speed internet.
The new NPC Kayenta Center will be much larger to accommodate additional student and community resources including the town library and an economic development space to support continued outreach and assistance to local businesses in the community. The town library will relocate from its existing temporary facility to one of the new center buildings and will be managed by the Township of Kayenta. It will double the space of the existing facility and offer separate entrances for public admission to provide community access to library services, books, electronic resources, and dedicated public computer terminal areas.
Over the past three years, particularly in response to the closures of the Black Mesa and Peabody Kayenta Coal Mines, NPC has joined forces with local organizations and groups to boost economic development in northeast Arizona and Kayenta. Among those, are partnerships and collaborations with the Township of Kayenta, the Navajo Nation Library System, the Navajo County Library District, the Kayenta Unified School District, the Navajo County Board of Supervisors, and various other area public services.
“The relationships we forged with local entities were crucial to the development of this project,” explained Richard Chanick, NPC lead for workforce and economic development. “During the planning phase, the entire NPC senior leadership worked with Township leaders and staff to ensure we were proposing a facility that met their needs. We believe this type of collaboration ensures the long-term success of the project. This project would not be possible without their support.” He said, “We believe the new Kayenta Center will bring the community together and support the local workforce by preparing traditional and non-traditional students to be better prepared for the future.”
NPC’s District Governing Board accepted the 2024 Economic Resources Transition Grant at their June 18, 2024, meeting. Kristine Laughter, NPC’s board representative for District 1 which encompasses the Kayenta area, expressed her gratitude for the project. “I want to thank the Kayenta Township for their partnership and for all the work that everyone on the team at NPC did to make this grant happen. It was a very competitive grant,” she said. “I am grateful for this project and for the resources to make it possible. This has been something that I have been working for as an NPC board member for some time now.”
The NPC Kayenta expansion and relocation project is expected to break ground soon with anticipated completion by May 2027.
Northland Pioneer College serves the residents of Navajo and Apache counties through four regional campuses and five centers with a variety of educational options for academic, career and technical, and personal enrichment. NPC supports each student’s educational goals through affordable tuition, small class sizes, and caring, professional instructors. For more information about NPC programs and services, visit www.npc.edu or call (800) 266-7845.



